Working with an intuitive palette of materials and minimal interventions, Pune-based Khushru Irani Design Studio (KIDS) artfully restore an old structure combining contemporary detailing with much of its original splendour, partly to be used as their studio and a space for events open to the community.
Occupying an idyllic corner of a busy thoroughfare within the Pune Cantonment area is a 100 year old building. An unassuming verandah peeps down on to the street midway from its three-storeyed façade – the entrance to the studio of Pune-based architectural practice Khushru Irani Design Studio (KIDS). With its sloping roofs, a verandah with wooden railings, seasoned doors & windows, a stone staircase and plastered brick walls, the building bears a distinct characteristic. It may feel akin to chancing upon on a long-forgotten secret.

From 2010-14, the building originally a residence over 12,000sqft, underwent a makeover spearheaded by KIDS. The transformation was respectful to the original scale and intent. “The project began with the structural retrofit of the entire building using steel columns and beams.,” they say, “This process took several months to complete and culminated with the rebuilding of the sloping roof. The original roof which had beautiful wooden trusses, was in disrepair and was collapsing since the trusses were giving way. A new steel roof was built in its place and the studio managed the entire design and construction process.”
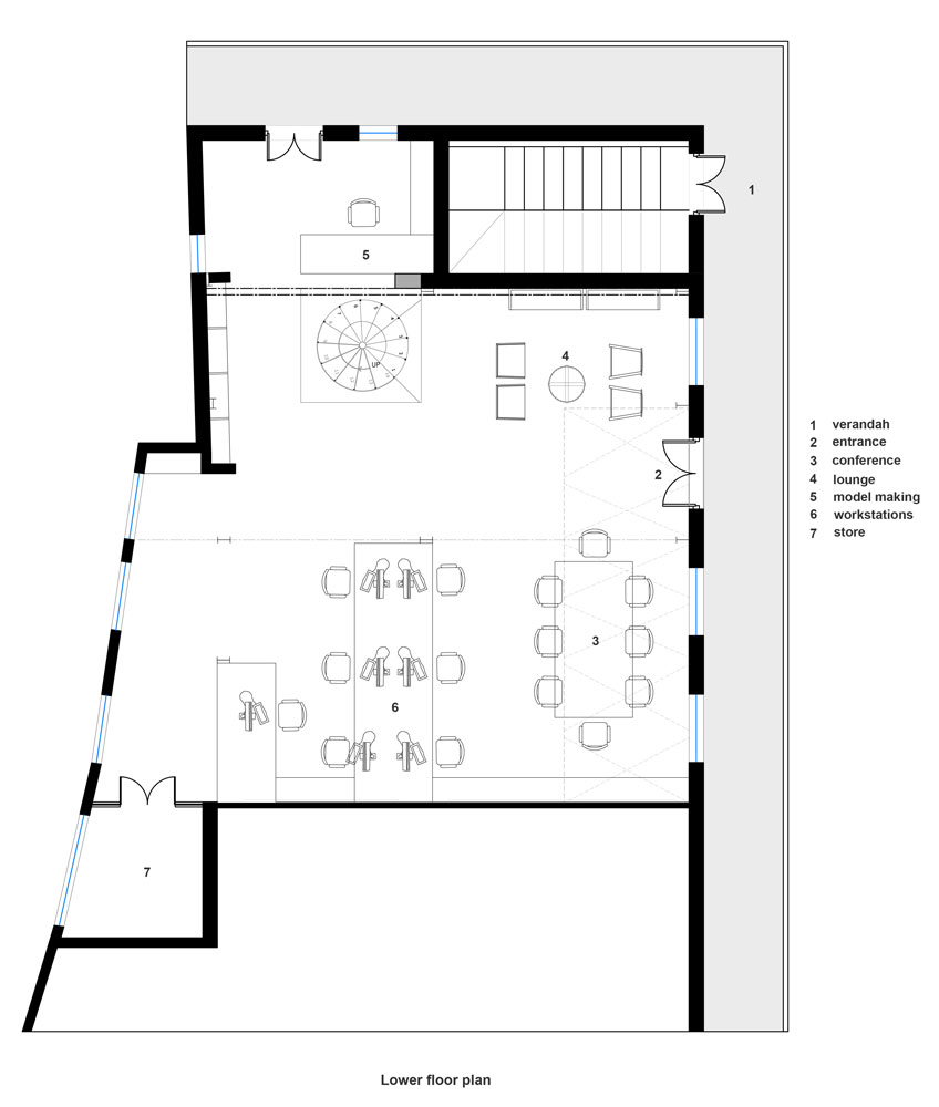
A preserved stone staircase ascends to the first floor from the southern end and ambles along to the entrance in the verandah. One enters into an airy 800sqft space comprising of the main workstations, a conference area, a lounge, library, storage and electrical rooms. Notably, the architects have sought non-intrusive materials & furniture that symbolically acknowledge and intensify the layers of history.
Inside, the spatial order is rational and simple. Within the open and connected layout inside, the furniture arrangements visually demarcate the functionality. Immediately to the right of the entrance is an informal setting as a Lounge and on the left, stationed almost below a double height volume, is the designated Conference area.
Adjacent to and beyond that, custom-designed workstations – the main one designed to seat six and another flanking the wall length, facing sizeable tag-boards – are finished with agro-wood board table-tops resting on painted frames of tubular steel sections with silver accents. A central wooden box atop this table whose design is influenced by Malaysia-based Kevin Low’s work, mobilises the data and power lines. Disparate in the palette, stainless steel is introduced sensibly to the context as spacers between the rubber wood table tops and as levellers that balance the table on the floors. To complement the quasi-old aesthetic, chairs delineated with cane seats for comfort and ventilation have been sourced from dealers of old furniture.
Inconspicuous in light polished granite, thoughtfully placed library shelves feature throughout. “The studio library is large, constantly growing and currently has about 600 books, with a capacity to hold about a 1000 books. The material used for the shelves is polished granite. By using a light coloured stone the shelving is kept visually light and adds a unique material and textural character to the space. The size, proportions and heights, and locations of the shelves were carefully thought through in the design process, as they would have a huge bearing on the overall ambience of the space.,” say the architects.
There is a natural affinity and ease about it despite being a workplace. Responding to a utilitarian ethic, the fabric is purposed from layers of detailing. The identity of the relaxed setting is rooted in the mute backdrop induced by the restored doors and windows, some unpainted and some in original condition, and by certain decisions taken as with the circular (used and exposed mostly) electrical conduits, wherein the wiring and networking of the workstations and power points is embedded in the walls and under the flooring. The conduits were laid before the flooring was finished.

The attention to each aspect generates a harmonic and tactile encounter; the reticent colour palette, the semi-polished brown Kota stone floor that was specially ordered from Udaipur in thin slabs to reduce the structural load, the fixtures that are prudently located in the recesses of the structural framework and old light fittings that were found from Chor Bazaar in Mumbai. In controlled moments of chance and detail, seemingly impulsive gestures such as selection of the dull green for the original door & window frames against the off-white interior surfaces, a reclining chair and choice of art, enliven the place. Elaborating on this, the architects mention, “The studio has a large collection of original art and artifacts, thoughtfully assembled over the years. There are wooden columns and building elements juxtaposed with ‘pato-chitra’ paintings and sketches by architects. Small sculptures in stone and clay and old pots and marble bowls create a sense of history and are an important part of the ambience of the studio. While selecting and placing the artworks in the studio, careful thought and a less is more approach was maintained. The paintings and objects in the studio are an integral aspect of the interior design of the space and act as a constant reminder and inspiration of the great tradition of art and craft in India.”

The ceiling of Kota stone sits low at this level and the robust structure makes its presence felt in a dark brown grid. The flow pauses at a spiral stairway – ‘a key element in the design and construction of the space’ – that waits beyond the lounge to connect one to the upper level. Inscribed with perforated metal sheet treads, the spiral stairway is light and integral to the expressed evident character. A modestly-sized niche is mediated behind this stairway and the main staircase block as a model-making studio. A beautifully restored stained glass window provides a backdrop to this double-heighted alcove which steps out to the other edge of the verandah.
The attic or ‘The Loft’ beneath the polished wood roof accommodates the pantry, toilets, the lunch area and a 500sqft multipurpose space that can host around 100 people while catering to community events curated by The Loft, a non-profit organisation founded by Khushru Irani. A corner extends out into a semi-open sit-out here. As ensured below, the furniture and finishes here are spare and the roof made of Marine Plywood with a natural polish devoid of any additional staining.


The tactility is austere but never monotonous; the tinges of mute finishes contribute to the sensorial quality of the space.
Neither history nor the programme overtly dominates. As a way of it being indicative of a larger idea, the architects say, “In some sense this project will never be fully complete, as the space evolves with small additions, subtractions and changes in space usage. This project showcases all the skills and sensitivities that the studio has towards architecture, conservation, response to context and interior design.” Inherently sensitive in the preservation of the old through skilful incision of the new, the retrofit is reflective of its earlier guise but does not emerge as a pastiche.
Information:
Project: Studio 877
Location: Camp, Pune, Maharashtra, India
Architect: Khushru Irani Design Studio
Design Team: Yogesh Kurhade, Cressida Fonseca, Reshma Netke, Khushru Irani
Contractors: Project managed by Khushru Irani Design Studio, Various contractors
Commencement of Project: January 2010
Completion of Project: November 2014
Areas
Site Area: 1400sqft
Text: Maanasi Hattangadi
Images & Drawings: © Khushru Irani Design Studio
This feature was originally published in November 2015 on Kyoorius, a publication on creativity with a focus on visual communication disciplines.











Well explained.