Engaging in a meaningful dialogue between elemental forms, alternative construction techniques and the philosophy of sustainability is the Bhatia Farm Residence by The Vrindavan Project in the rural landscape of Onde in Maharashtra.

Identification of a context and continuity lies as a generative core to architecture. In India, a context evolves from many forms of recognition, be it of cultural, physical, topographical or ecological aspects. In ‘Analysing Architecture’ Simon Unwin said, “Recognition, memory, choice, sharing with others, the acquisition of significance; all these contribute to the process of architecture.” Though more often than not, exploring the process of contemporary architecture in India within today’s pluralism seems futile when the subjective notion of ‘context’ often resolves to the convenient mimicking of facades, elements and details rather than respecting volumes, rhythms of movement, the terrain, the character and scale of typologies, the spirit of the community and techniques. To evoke such connections with it, perhaps might also be a necessary step to sustainable development.
The Bhatia Farm Residence in the small village of Onde near Mumbai in Maharashtra designed by Mumbai-based The Vrindavan Project reacts with this sort of functionality, its details evolving beyond objective concerns that define the typical alienating architecture. Although for a private residence in this village with a total populace of 1147, the design was gradually broadened to cement relationships with the context, the idea of sustainability and inclusiveness of the community.
Explaining the factored basics of the project, Ranjeet Mukherjee of The Vrindavan Project says, “The site is eleven acres in size, undulating with steep contours and terraces. Cared for by the Bhatia family over the years, now this previously barren land is a thriving oasis of green tranquillity with hundreds of fruit trees, and rich biodiversity. The client who commissioned this home is an avid ecologist and advocate of urban composting, in his neighbourhood at Marine Drive.
We are an architectural design and construction firm, working exclusively with ecologically appropriate materials and sustainable technologies. When approached to build this countryside house, it was evident from the onset that our client’s vision resonated perfectly with our own. The product was to be an authentic contextually appropriate modern prototype, for a region now subject to urban sprawl.”

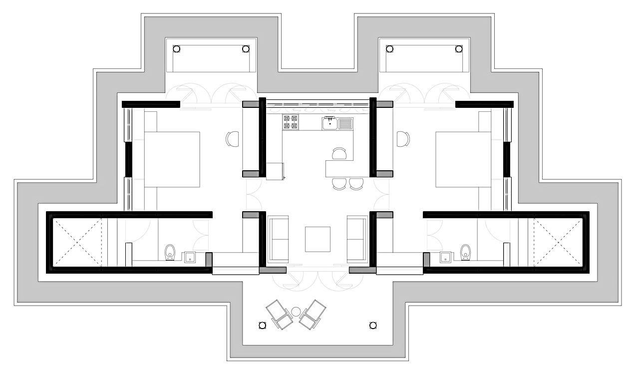
Responding to the climatic influence of the tropical monsoon regions, the air in this setting is sultry, hot and humid. On approach, amidst a clearing with trees of the extensive organic farm fringed on its visible limits, the external geometries of the residence betrays no particular rhythm. The entrance descends down an access stairway from the parking and alternatively from the farm in the southern end of the site, ambles along towards the north. Set linearly in plan, three visible constructs of 1700sqft follow decreasing gradation of occupancy – the main residential structure at the northern-most end, and a gazebo and a swimming pool at the southern end with the capacity of 1 lakh litres near the entrance. The axis oriented to the north-south direction stems from the porch of the house bifurcating in abstraction, the gazebo and the swimming pool. The planning is contrived simply with an emphasis on structural resolution and a consideration for materiality as an imperative dimension. The architects ventured beyond just integration of ideas towards a more collaborative approach with the wider community, building sustained relationships with the context.

“The lack of locally available skilled masons in the area posed quite a challenge. We responded to these circumstances by taking on the contractor’s role ourselves, working directly with villagers from the nearest settlement. These people are primarily farmers with little experience in construction. Harvest seasons had to be factored into project scheduling, over and above the necessity to teach every aspect of building from scratch.
To our delight the enthusiasm displayed by these locals was extraordinary. As we commenced with demonstrating a method of creating stable foundations using only compressed earth, their interest in the work was locked. Our approach was cost effective as compared to other strategies employed in the region thus far.” -Ranjeet Mukherjee, The Vrindavan Project.


The main structure is simple and symmetric in form, aligning to the gazebo in height and is uniformly cubic with the exception of a vaulted roof. The outer façade presents as a perfectly balanced interplay of rammed earth walls with curious motifs printed on them and an extruded loggia mirroring the plinth carved out of and sitting atop a shallow moat. Circular paving blocks treading over a short outcrop of grass lead to the modest porch that announces the formal entrance to the house. Straight ahead, lies the living room and a kitchen, flanked by two bedrooms replete with verandah decks, one on either side. The verandahs suspended over the moat, are singularly defined by their respective seating arrangements wherein one has a more formalised insitu position between columns, the other is more of an open space with chairs. Inside, the bedrooms are amply lit seemingly expansive in scale and inviting in light from the glass-encased ends of the vaulted ceiling. Hereon, the attached restrooms are spaciously designed with an open-to-sky shower enriching the experience.

“In order to provide structural integrity, allowing for the building to be disaster resistant; this earth foundation is capped with a plinth beam tying the whole base together. A water channel moat is integrated with the foundation to provide cooling, and insulate the home from infestations; while also serving as a beautiful water body.
All load bearing walls for the building are created using compressed earth, just as in the foundation. These walls are rammed by hand, in-situ using a shuttering assembly, which is easily assembled and dismantled. This shuttering is designed to create any size of wall using only a single apparatus, in turn minimising equipment and thereby costs of infrastructure.
A wall panel of 8ft x 8ft and 9″ in thickness can be rammed in a single day. Since this entire operation requires only human energy, and basic raw materials, such a method is naturally low in carbon footprint, as well as economically feasible. The building is a load bearing structure and the entire roof of this home is supported by these earth walls alone.
Having saved on the need to purchase volumes of brick for the main structure, our workers welcomed the knowledge of this technology, and were visibly proud to be the first ones in this region to succeed in creating modern rammed earth walls. Owing to proper technique and carful execution, the surface of these earth walls are aesthetically pleasing, and did not need to be plastered; thereby further saving costs, time and effort.” – Ranjeet Mukherjee, The Vrindavan Project.
The interiority reflect and engage with the ethos and aesthetics of the structural framework; inverted terracotta pots adorn the ceilings, the vaults amplify the spatial and light quality and the stark hues of the palette of plastered/unplastered rammed earth, wood and concrete reign. The simplicity renders the entire synergetic space engulfing all kinds of domestic activities. An episodic layering of light through multiple orchestrations and devices characterises each space. A spate of details is employed in a series of form-making gestures, such as the steps that form the ledge of the windows, the seatings extending from the walls, recessed storage shelves for the study corner, or is rooted to enhance the sense of character in the place such as the dramatic inscriptions in the walls, quaint flip switches, louvered doorways that open out to the verandahs, reflected light which skims the vaulted ceilings, dramatic frames as from the open-to-sky bathrooms or from the terrace inlaid with china mosaic. The use of the materiality in such nuanced ways embeds the architecture more fully as an experience that goes beyond just buildings to articulate and resonate more intensively with more humane interactions of the daily life.
“Where concrete slabs are necessary in the roof, inverted terracotta pots have been cast into the slab. These create hollow fillers in a normal slab thickness, minimising concrete content. These earthen pots are standard locally available sizes, which are retained in the ceiling, visible from below. This method creates a waffle effect in the slab that is aesthetically unique, and drastically reduces the dead load of the structure, as embodied concrete quantity is minimal.
The primary volume of this home has omitted the use of concrete altogether, by spanning a brick vault, which removes steel from the equation while reducing cement content to create a stable roof. Apart from the natural beauty of such a form, this vault provides for ventilation and illumination of the space. Owing to the thickness of the vault section; contained spaces are naturally cooler, reducing electricity consumption over time.
All doors, windows and load bearing columns are sourced as recycled materials, salvaged from demolished mansions at the Karaikkudi town of Tamil Nadu. Timber can be considered as one of the few truly renewable construction materials available, with the added benefit of carbon sequestration over the lifespan of said tree. Therefore the incorporation re-used timber is a double bonus in terms of sustainability quotients and embodied energy efficiency of the building.” – Ranjeet Mukherjee, The Vrindavan Project.

In congruence with the entrance to the main structure, a gazebo composed of five interlocking pyramids stands aloft in a narrow spherical plinth. More of an open-plan recreational pavilion, on two sides, four ends of planes of the overhangs converge on either end of a wall that accommodates an in-built seating in its alcove. The quasi-formalness of the space and its sculptural shape has a strong physical impact but its simultaneously open and enclosed volume engenders a sense of belonging, of continuity, of explorations of the surroundings.
“Integrated with other landscape elements, we decided to attempt an innovation of the region’s traditional roof form as well, using locally acquired timber with standard Mangalore tiles. Taking the form of a self-supporting gazebo, designed as five interlocking pyramid structures, this well ventilated outdoor space is open on all four sides. Providing ample recreation area, the feature serves as an extension of the home while providing much needed shade for the swimming pool.” – Ranjeet Mukherjee, The Vrindavan Project.
The spherical plinth at one of its edges diversifies into an arrangement of concentric arcs that further dissolve into a designed sinuous landscape built over the retaining wall. Tracing the existing subtle contours, the wall of random rubble masonry widens into a seating and barbeque further on, is repurposed to act as a serving counter and washing platform and, continues further on to elongate into an access stairway to the site.

One of the overhangs of the gazebo partly shades an edge of the rectilinear swimming pool and as a stepped seating casually overlooks the pool’s southern edge, the design reaches its conclusion.
“A swimming pool made primarily of local stone has been built with buttress walls, retaining water just as in vernacular step wells. The large surface area of the tank harvests vast amounts of rainfall, while serving as a farming water reservoir for dry spells. Overflow of this pool fills the house moat, and feeds plantations thereafter, using only gravity for circulation.” – Ranjeet Mukherjee, The Vrindavan Project.
The proximity of the built environment ushers an intimacy to the scale. The architectural language absorbs the surroundings in an experiential way – in a way that is quintessentially sustainable. There is much order to the chaos and the design does not embed a narrative intent, rather, its very materiality, its detailing, elicits different associations. It cannot be captured in a single moment; the choreography of accrual occupancy, the meandering of the landscape elements within the retaining wall, the siting of the verandahs, the gazebo and the pools and the coordination of all the social agendas of these spaces, is intended to interpret, amplify and dramatise multiple readings of the site. Within these encounters, the planning is revealed and supplemented as a unified vision informed by a tenacious wealth of possibilities and alternative construction techniques. Sustainability in architecture need not be a statement of architecture, it can be an indicated way of life.
Information:
Areas:
Site Area: 11 acres
Built-up area: 1700sqft + 1 lakh litre swimming pool.
Project: Bhatia Farm Residence
Location: Vrindavan Farms, Onde, Wada-Jawhar Road, Thane, Mumbai
Architect: Ranjeet Mukherjee
Interior Designer: Shreenu Mukherjee
Built by: The Vrindavan Project
Client: Anil Bhatia
Materials: Rammed Earth Foundations and Walls
Brick Vault Roof Structure
Terracotta Pot Filler Slab
Recycled Wood Doors, Windows and Columns
Stone Masonry
Commencement of Project: April 2012
Completion of Project: December 2013
Estimated Cost of Project: Rs 50 Lakh Rupees / 82,000 USD