Amidst an overwhelming landscape of the Sahyadri range of Maharashtra nestles the Sahyadri School. Designed by Pune-based Khushru Irani Design Studio, the architecture is an ensemble of spaces sewn together with tactful geometry and generous circulation.
Situated on a remote site, the school was established as a residential campus in 1996 for students from class four to ten. The educational philosophy of the school has its roots in the profound teachings of J. Krishnamurti who envisioned a space of learning free from obstacles, close to nature. A proposed extension of the school to include class eleven and twelve presented itself with an opportunity to express the workings of two synergised design philosophies through architecture.

It is not hard to imagine an architecture that can eclipse a landscape sparsely occupied by man. Simultaneously, there is a continuum of our thinking about design on campuses and how an insertion could strengthen what is incipient in a particular place. The chosen design approach is not far from this understanding. Sixty-five acres of hilltop land with valleys dropping off on three sides and an existing campus, the foremost idea was to produce a cognitive architecture that is non-obtrusive in its schema.

Acknowledging the transitioned state of the site, the design of the school is conscious that its existing context is not the future of the site. Negotiating between these seemingly conflicting polarities helped to diversify freedom within the built form while maintaining restrictions of a more or less regular perimeter.
With a keen intent of restraint, the design opens up a universal desire to give fluid space to its users, thereby supporting life within and around it.
The building subliminally thrives in the landscape of the Sahyadri Range which changes colour and texture twice a year- a golden brown spell of dry to a short but vibrant burst of greens during the monsoons. The footprints are positioned in response to the site topography. But what sets them apart is their nature as a horizontal development, attaining a sense of community by being closely clustered.
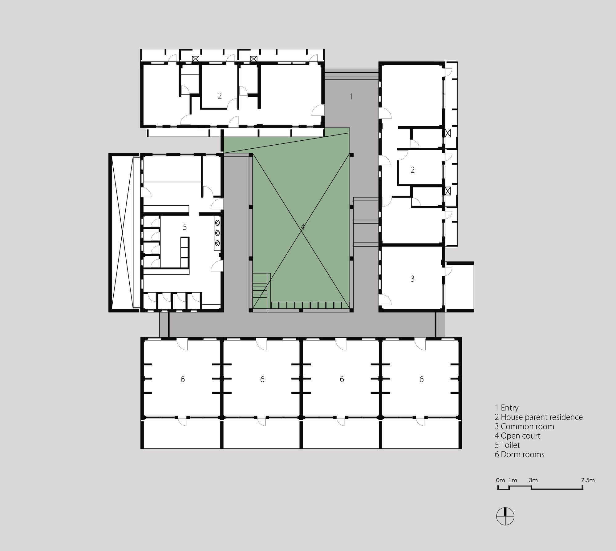
With a vision to explore formal and spatial configurations, the built form encloses a central courtyard which connects and retreats spaces in the academic and residential blocks respectively. Situated in close proximity to the existing academic blocks, it is deliberately designed in a manner that dissociates but is still tied to the old in the resulting informal spaces created in between.

Approaching the building, a visual axis draws the visitor into the courtyard that opens out to gentle hills to the northeast. The porosity articulated by the wide verandas enhances the abundance in which the building rests. To the northwest corner, sits an off-centered stairway that descends into the landscape beyond. Tucked away in the northeast is an amphitheater that sits on the slope of an adjacent hill. The wide corridors accommodate a Student Zone beside the amphitheater, providing an ideal setting for various collective activities.
The angular walls are positioned to pronounce parts of the building, for instance, the wall as an art canvas gets framed as a backdrop of the main entrance. From afar, each of these walls acts as a vantage point tying together adjoining faces of the building, gradually unveiling the composition of spaces.
The residential accommodation is composed of separate dormitories of 8000 sq ft each for girls and boys, cocooned away to the rear of the site with a magnificent view of the lake below. A central courtyard provides much-needed privacy from the abounding openness all around. Owing to the terrain, the rooms are located at a lower level with an entrance at a higher level. A stairway descends into a common corridor that wraps around the open court.

Balconies occupy the inconspicuously cantilevered verandahs, giving the impression of a mass hovering above gentle slopes. The toilet block opens out to a yard space that is essentially a framework of columns. When perceived from the outside, this protruding framework fractures visibility briefly in between a largely contained composition. Amply lit and ventilated by generous openings, every block is self-sufficient with a common room and spacious house parent rooms. Additionally, no room is devoid of an abutting private step out space.
Because the buildings are uncomplicated in volume and form, the materiality of the building holds a greater significance. It balances a clean, modern aesthetic, minimizing its importance with a simplified massing. A gray band of rough basalt followed by uniformly painted blocks and polished Kota stone floors set the visual tone. Ideally scaled in response to an immersive environment, parts of the building are engulfed by dense foliage that cast animated shadows of swaying trees on the undertone walls. An important aspect of the design is the efficiency of the RCC structural frame in defining the building visually.
An unassuming architectural language extends itself to the outside, basking in the changing seasons, sights and skies. Perhaps, any aesthetic value is some kind of a construct set-up on human interaction with nature.
The architecture of the school exemplifies a conceptual strength with subtlety, clarity with mystery and gravity with lightness.
The success of the restraint in its architecture lies in the exhibit of a collective artistic expression of its users across the school. The school is not a foregrounded personal statement of architecture but of natural emphasis that bare aesthetic places on the real over the abstract. ♦
Information:
Name of the Project: Sahyadri School
Location: Tiwai Hill, near Rajgurunagar, Maharashtra, India
Architects: Khushru Irani Design Studio, Pune
Client: Krishnamurti Foundation India
Site Area: 65 Acres
Building Area: 40,000 square feet (5 buildings of approximately 8,000 sqft each)
Year of Commencement: October 2013
Year of Completion: May 2015
Images & Drawings Credits:
Photographs: Atul Kanetkar
Drawings: Khushru Irani Design Studio, Pune
Text: Hrushita Davey

completely irrelevant but i painted those three boys on the chinar door. lol