An editorial project by Matter in partnership with Şişecam Flat Glass, PRAXIS investigates the work and positions of diverse contemporary architecture practices in India. Bhavana Kumar and Nicola La Noce of Bengaluru-based Kumar La Noce revisit relevant experiences in their practice and examine the impact on the way they think and design. The dialogue dwells on impressions from their earlier years, recent works, and reflections on their experiences.

Kumar La Noce
Bhavana Kumar, Nicola La Noce
Tell us about the inception of your practice, the formative years, and the ambitions it was informed by.
NLN: Kumar La Noce’s first steps trace back to London towards the end of the last decade, at the Architectural Association, being hyper-critical and provocative. New tools and paradigms were being tested, ways of looking at cities, spaces, informal economies and drawing anything and everything. The AA as always was a place of continuous extreme inspiration and interaction. Particularly that year (2009) the “First Works” exhibition was organised to celebrate the first projects of now leading masters capturing them (in the 60s and 70s) when they were young and energetic, ready to question the world through new and powerful ideas. I still remember the sheer thrill of meeting in those narrow corridors and small but cozy lecture halls people like Piano, Koolhaas, Ito, Hadid, Tschumi and HdM, to mention few.








London in particular at that time was going through deep changes economically and from an urban perspective. Piano was working on the Shard and London Bridge re-developments; the Olympic works were going on in Stratford bringing along with it gentrification processes that we were very much studying at the AA. And of course, the excitement of being part of such a complex urban animal that is London.
BK: At the same time, London and the whole of Europe was somewhat saturated in terms of work opportunities, in throes of an economic crisis whereas Bengaluru, my hometown was growing rapidly and grappling with complex urban challenges; Important cultural, civic and creative initiatives were being promoted, the Bangalore Literature Festival, Karnataka Tourism Vision Group, ‘Wake Up Clean up’ Bengaluru,( a week long expo on the issue of waste management) : it was an obvious choice to start something here.
Our practice began simply by the coming together of the two of us. We dived in, with a burning intent to test our ideas, to develop fresh strategies for cities, to build something beautiful.













What forms the basis of your practice now? What would you identify as the main intention of your work? What are the values or principles that the studio is grounded in?
BK: A need to create evocative spaces informed by pragmatism, culture and collective memory. Collective memory refers to the two of us, our inspirations and our connections to a terrain or a project but also to that of each context and the people we work with. It is about tapping into the depth of history (or not) that comes with each project. Not just in a poetic way but as a deliberate meditation on the brief.
Many times, we find that the impulse a space or an object invokes in us, places we remember, our relationships with nature, have a fundamental similarity and this has to do with the relationship between man, woman, space, object and memory.
NLN: Also a need or a quest for Beauty and Truth, of the whole and its parts. We started KLN believing our job as architects and urbanists is to work for and with the community/ the civil society. This could happen directly or indirectly. Hence what we design and what our drawings mean can trigger multiple events in time (what Rossi describes as part of the primary elements within a city, which can accelerate or retard urban events). Any relevant project, based on scale, programme, location, etc. can become such an element.
At the outset, how has it evolved, and what is the way forward?
NLN: We see ourselves and our work as fluid and responsive. In continuous mutation, motion. Each project is a step forward in the same direction through multiple trajectories. We do not see each project as a new story. Instead a collection of experiences belonging to the same narrative.
We are currently looking at high- tech/low-cost systems and technological solutions to achieve resilience through architecture. Today’s challenges are rooted in volatile economies, World crisis, pandemics- signals that need to be studied and addressed. In order to tackle them we need to restart the conversation about the built realm with a scientific approach. This implies human beings need to be back at the centre of our work as architects. People in space, not empty spaces.
BK: The future (in general, and for our studio) lies in empowering (be it communities, businesses, schools) through design. Solutions that can be carried forward and adapted. In our project for the Kalkeri Sangeet Vidyalaya for example, the light roof structure serves both a structural purpose as well as integrated passive ventilation, using readily available materials. The intent was to create a modular system that could be repeated, adapted, used as tools for future projects within the school campus.


















What are the typologies and scales that you are currently engaged with? What are your interests and what kind of work appeals to you? What work does your studio actively seek?
BK: Currently we are working on single family houses in tight urban plots, a school campus and a series of public toilets with a twist! These are genres, not ‘types. We address each brief with a question about typology, what models or fundamental constructs will lend itself to this brief, this particular genre, this terrain, in this context? Our interests lie in distilling complex domestic, cultural and social requirements into architecture that shows clarity.







For the residences, we are exploring how domesticity, nature and privacy can be layered (literally) within compact urban plots; we can learn, for instance, both from traditional courtyard houses in Chettinad and housing projects by the likes of the Italian rationalists, Figini – Pollini! Ultimately we seek to contribute to the dialogue of the city critically.







What is the nature of the design and thought processes pertinent to your practice? What are the tools of your practice? How have the processes evolved over this decade? How does your studio participate in the process?
NLN: Design is not linear, instead it is fragmented and scattered like time itself. It is a continuous fight for survival. Some ideas are stronger than others and do not survive. We draw, argue, test and finally distill them into sets of strategies that eventually form the Design. The last two decades have given us sophisticated design tools that help us imagine, forecast and control the design process in advanced ways; we are however quite aware that these are tools that need to be used to aid and reveal our core ideas, not mask them.
In the daily studio life, the office works as a whole with its different parts. Each of us has particular set of skills that are put in place according to the stage of the project. In this sense we work organically, particular roles but not absolute.
We always encourage the personal growth and we push it in order to achieve harmony within the office. This is how it works in team-sports or in an Orchestra. Naturally the skills of the musicians have to be good if we want to achieve a good performance!
BK: A method we use quite often is the ‘workshop’ mode, where rapid iterations, quick physical models of various scales/ details are produced to test ideas. The two of us here take on roles that catalyze these constructs, forms and even mistakes into the next stages of design. The two of us are quite different in our methods and approaches and we rely heavily on organic balance that this brings both to our projects and the studio culture! ; while Nicola is quite analytical and systematically goes through iterations and ‘sets’ of ideas, I rely heavily on obsessing over an idea and making what I call ‘ugly’ models or sketches, quick ways of getting thoughts out of my head. We often converge fairly early in the process (after some spirited discussions!) and work towards a common intent.





Is there a consistent approach or enquiry at the core of the practice that drives the design and informs the decision-making process? What are the factors and challenges that affect it?
NLN: I would say, continuously questioning. Design is not so much about answers but rather about asking ourselves the right Questions.
















What is the aspect of work that you value the most? What are the critical parameters of a project that make it successful for you?
BK: The learning that comes with every project. There is no substitute for experience. Also, the problem solving; constraints give a project structure and we very much enjoy using them to the advantage of the project. The aspect of restraint and knowing when to stop is something that I consider critical to any project. This involves fiercely protecting the core idea along the entire process of the project.
NLN: A project is intrinsically linked with multiple actors. In order to succeed a project must follow the intent and ultimately the drawings, which are the last bastion of Architecture. Drawings represent the summa of all the energies gathered in the process. They are the artistic and technical outputs that have distilled and interpreted massive amounts of data coming from the different actors. Drawings are complex, layered, speak different languages according to who’s reading, they are objective and cannot be interpreted but executed with personality; exactly like a music sheet is read, studied and executed by the orchestra with the guidance of the director. Hence to me we must have the inputs, outputs and correct execution in place in order to achieve quality.
Ultimately, a successful project adds value through its architectonic qualities to its inhabitants, to its physical and cultural context.



























What is your reading of contemporary architecture in India? How do you seek to position your work and your practice within the larger conversation on architecture in India?
BK: Sparks of interesting and relevant works of architecture keep emerging from the Indian Architectural scene, but we are more interested in developments that will encourage continuous and collective production of good architecture across the sub-continent. We have a long way to go before the role of architecture within the built realm is more widely understood and acknowledged.
NLN: We also need Schools of Architecture that take the responsibility of bringing up the next generations of architects and citizens seriously. A generation that has the necessary skills and right questions for the new world. That is what we have been trying to do while teaching in different schools in and outside Bengaluru.
Although Architects do not have an official oath, like Doctors or Lawyers, we find very powerful the idea of the Ephebic Oath or the oath of young Athenian citizens (5th century BC), sworn not only to protect but also “to not leave a diminished heritage, but greater and better than when I received it”. A beautiful statement that every future architect and urban designer should always remember.
BK: The art of building is as old as time itself and there is a certain continuity through time when it comes to space making. At the same time cities and people’s needs are changing rapidly and require relevant solutions, alternative ways of living and working, smart buildings and energy efficiency. We position ourselves in this confrontation. How can we offer new models of domesticity, High tech – low cost, updated definitions of public-ness and private-ness, adaptability of space, technical sophistication while creating spaces that are sensitive, robust and timeless? ♦

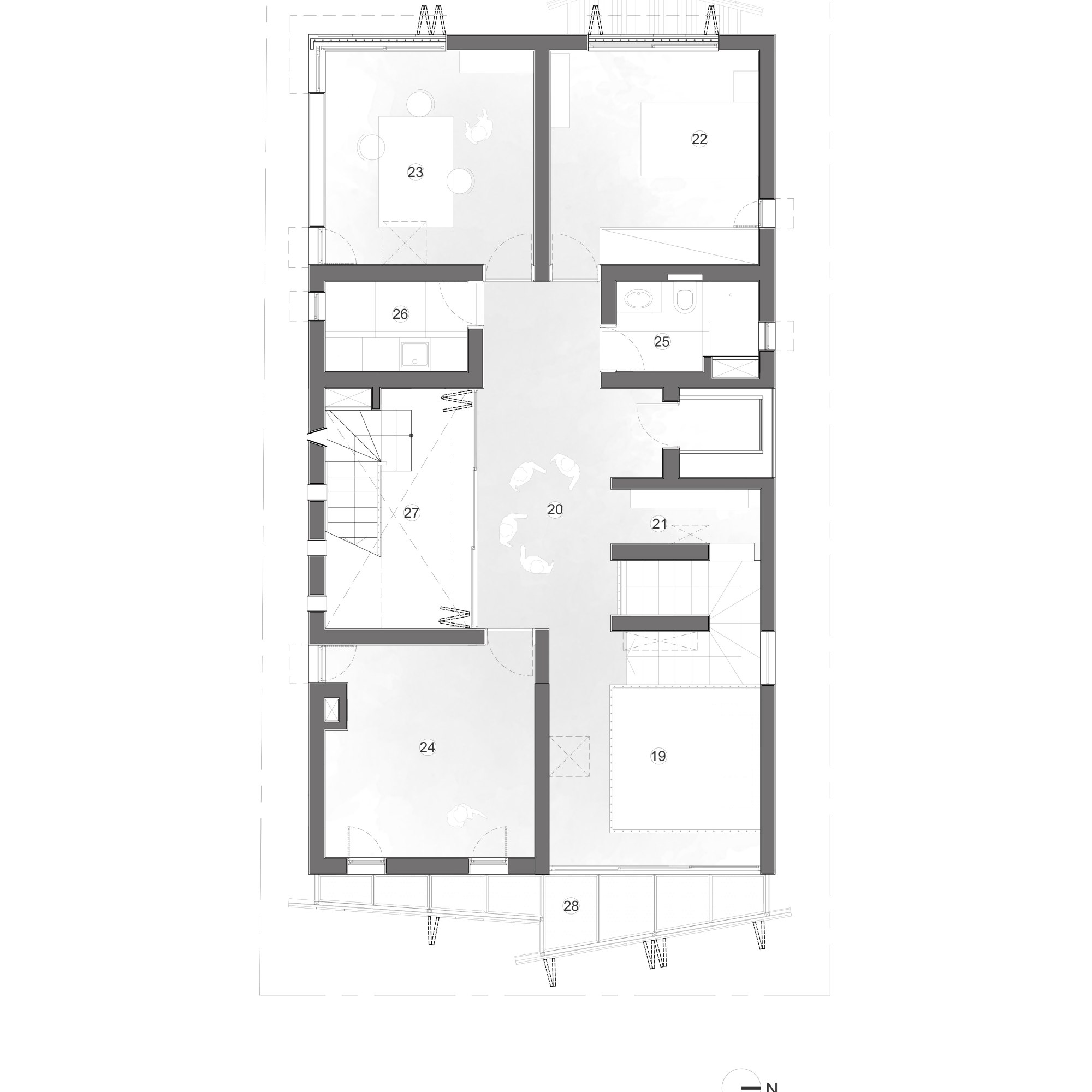
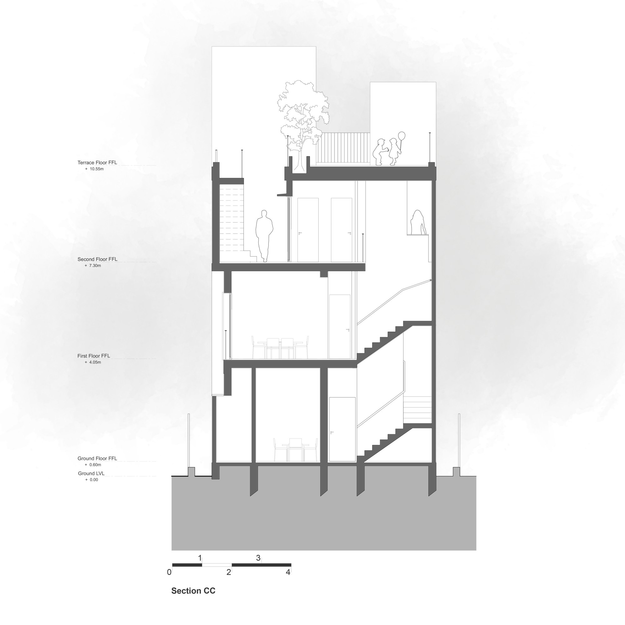
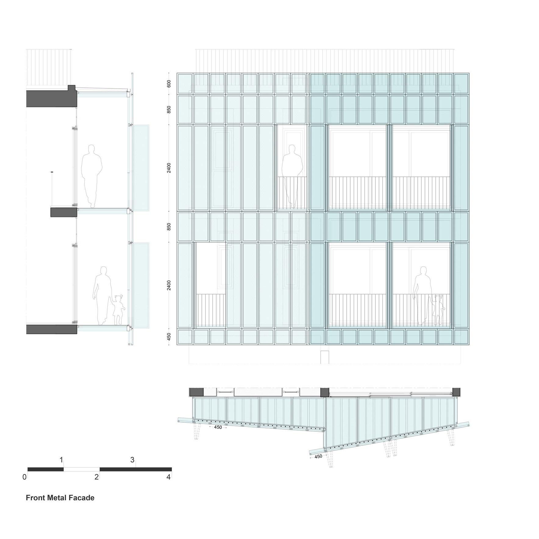
Images & Drawings: courtesy Kumar La Noce
Filming: Dhanraj Raju | Editing: Gasper D’souza, White Brick Wall Studio
Praxis is editorially positioned as a survey of contemporary practices in India, with a particular emphasis on the principles of practice, the structure of its processes, and the challenges it is rooted in. The focus is on firms whose span of work has committed to advancing specific alignments and has matured, over the course of the last decade. Through discussions on the different trajectories that the featured practices have adopted, the intent is to foreground a larger conversation on how the model of a studio is evolving in the context of India. It aims to unpack the contents, systems that organise the thinking in a practice. Praxis is an editorial project by Matter in partnership with Şişecam Flat Glass.
Şişecam Flat Glass India Pvt Ltd
With a corporate history spanning more than 85 years, Şişecam is currently one of the world’s leading glass producers with production operations located in 14 countries on four continents. Şişecam has introduced numerous innovations and driven development of the flat glass industry both in Turkey and the larger region, and is a leader in Europe and the world’s fifth largest flat glass producer in terms of production capacity. Şişecam conducts flat glass operations in three core business lines: architectural glass (e.g. flat glass, patterned glass, laminated glass and coated glass), energy glass and home appliance glass. Currently, Şişecam operates in flat glass with ten production facilities located in six countries, providing input to the construction, furniture, energy and home appliances industries with an ever-expanding range of products.
Email: indiasales@sisecam.com | W: www.sisecamflatglass.com
One thought on “PRAXIS | 05 KUMAR LA NOCE”