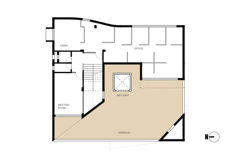
02 First Floor April 28, 2015 1754 × 1240 Office & Laboratory Block, Goa: Sachin Agshikar First Floor Plan