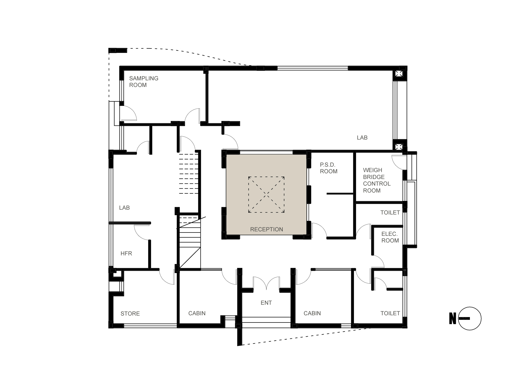
01 Ground Floor April 28, 2015 1754 × 1240 Office & Laboratory Block, Goa: Sachin Agshikar Ground Floor Plan