thinkMATTER
Search
Primary Menu
Skip to content
History
Modern Heritage
Listing: Buildings & Sites
Modern Heritage: Jawahar Kala Kendra, Jaipur
Structural narrative of Indian Modernity as an oeuvre of Mahendra Raj
Charles Correa: Trajectories and Contexts
Doshi: The Master of Elastic Time
‘India: Modern Architectures in History’
MODERN HERITAGE: In Retrospection: Shivdatt Sharma
MODERN HERITAGE: IIM, Bangalore
Claiming Space/Designing Space: Women Architects in Modern India
Practice
Praxis
PRAXIS | 01: PLAYGROUP STUDIO
Models & PROCESSES BY NURU KARIM (NUDES)
Architecture BRIO: Critical Tools
Design & Décor
STUDIO: Nataraj and Venkat Architects
HIREN PATEL ON ‘MAKING’
Material Immaterial Studio
STUDIO: BPS ARCHITECTS
Sanjay Mohe on Practice of Architecture in India
STUDIO: Pratyush Shankar
Architects on Architecture : mayaPRAXIS: Dimple Mittal and Vijay Narnapatti
Exploring Emergent Architecture by Studio Advaita
Design of the Idea with Ajay Shah Design Studio [ASDS]
Projects
Architecture in the Public Domain: Mancini Enterprises Pvt Ltd
ST JOHN THE BAPTIST CHURCH: VIKAS DILAWARI ARCHITECTS
National War Memorial, Delhi: WeBe Design Lab
House in Assagao by Field Atelier
SREE VADAKKUNNATHAN TEMPLE CONSERVATION PROJECT
HILLTOP SCHOOL BY DesignAware
Ice Factory and Coconut House by Ini Chatterji – Film by Matter
Making
Oxide: Beyond a material
Crafting Metal Roofs
Books & Films
Níall McLaughlin: The 2021 Takshila Lecture on Architecture and Society
Book: BLUEPRINT
Book: ‘Plastic Emotions’ reviewed by David Robson
In Focus: The Architecture of Didi Contractor
Book: The Structure: Works of Mahendra Raj
Film: Nostalgia for the Future: A Film by Avijit Mukul Kishore and Rohan Shivkumar
Book: Brinda Somaya: Works & Continuities
Book: CHANDIGARH REVEALED: LE CORBUSIER’S CITY TODAY | PHOTOGRAPHS AND TEXT BY SHAUN FYNN
Book: CONSERVING ARCHITECTURE BY KULBHUSHAN JAIN [Ed]
Education
On Education
An Ephemeral Lab in a City of Fixity
‘I am Damned If I Do and Damned If I Don’t’
History: Narratives for Meaning and Operation
ARCHITECTURAL EDUCATION: A ROAD MAP TO REFORM
School Without Walls
Visual Culture
Drawing to Find Out
PERCY ADIL PITHAWALA
SHUBHRA RAJE
Indigo Architects: Mausami and Uday Andhare
Ajit Rao
KSA Architects: Nemish Shah
Hundredhands: Bijoy Ramachandran
On Photography
Fabien Charuau: On Photography
Niveditaa Gupta: On Architecture Photography
RANDHIR SINGH: ON PHOTOGRAPHY
Bharath Ramamrutham: On Architectural Photography
Portraiture: ‘Movie Theaters’ and ‘Churches’
Photography and Modern Indian Architecture
FOLIO
Archives
About
Initiatives
The Merit List
FRAME Conclave
[IN]SIDE
Search for:
00 Studio 877 DWG PLAN
December 8, 2015
848 × 1000
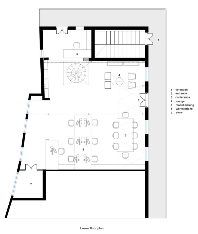
Studio 877: Khushru Irani Design Studio
Previous Image
Next Image
Leave a Comment
Cancel reply
Δ
This site uses Akismet to reduce spam.
Learn how your comment data is processed.
THE MERIT LIST
[IN]SIDE JOURNAL
FOLIO
FRAME CONCLAVE
STUDIO MATTER
Comment
Subscribe
Subscribed
thinkMATTER
Join 248 other subscribers
Sign me up
Already have a WordPress.com account?
Log in now.
thinkMATTER
Subscribe
Subscribed
Sign up
Log in
Copy shortlink
Report this content
View post in Reader
Manage subscriptions
Collapse this bar