Encompassing a dual participatory programme dwelling on production and retail, the Wrap Art & Design Factory by Delhi-based Design Bureau has an ideological, spatial, textural richness that seeks to consolidate layers of inclusiveness within its low-slung scale.
New Delhi towards its southern end fringes into a curious multiplicity of neighbourhoods comprising of temples, farmhouses and makeshift factories amidst the growing residential sprawl. The context is rurban at the most with each nuance built objectively with an introverted view. Assertively within this contradiction in Chattarpur, a ‘lal dora’ (urban village) as the architects of Delhi-based Design Bureau put it, is sited the Wrap Art & Design Factory.
The spatiality is a response to translation of an identity of the brand promoting traditional craft, culture and concepts in product design. In a reciprocal relationship, the design elements were worked out collectively with the client in terms of ideas. The built over 8000sqft as such has no iconic pretensions but at the same time, is no less architecturally ambitious.


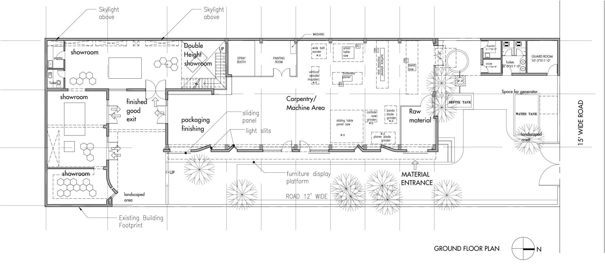
The simplistic site planning streamlines the influx for efficient flow throughout. The linear entrance from the northern edge of the site stages and influences an asymmetrical bifurcation of the expanse into a 12ft wide access road along the western edge, pausing ultimately before a slightly elevated platform, partly stepped, ramped in a corner demarcating the pedestrian approach from hereon. A simple insignia on a curvilinear edge announces both the brand and the building here. Another pivotal point in the access road secludes one to a closer area privy only to the staff. The character of the building is instituted gradually through the longitudinal textural façade composed of exposed brick & concrete interrupted rhythmically by two-storeyed long frames of windows – an ethic , as the architect says, reminiscent of ‘the traditions of Indian Modernism and Regionalism’.
The entry for an outsider to the building framed volumetrically within a square alcove formed two fractals – the enveloped L-shaped existing footprint of a warehouse shed and supplementary rectangular construct knitted in by the architects. This is the only space where the geometry presides and the rest spans out in an open plan. By the way of establishing order to the design, the immediate structural framework of the warehouse shed is dexterously converted to accommodate a network of showroom spaces.

For the staff personnel, the cuboid provides admittance at two points: one designated for the transfer of raw material towards its eastern edge and a small opening oriented to north facing ancillary spaces of the Guard room and core services such as the water tank etc. A sense of perpetual motion invades the interiors of this volume – the architecture resorts not to a labyrinth of interior enclosures but rather to a blurring of lines between the spaces and programmes. The ground floor convenes as an extensive workshop composed of separate avenues of production such as carpentry/machine, packaging/finishing, spray booth and painting room amongst others. The idea of the interiority hinges on purpose as an interchangeable commodity – of modularity and flexibility. As articulated by the architect, “The factory space served a dual purpose of being a production cum exhibition space wherein during product launches it can be completely opened up to the exterior using a series of 10ft high sliding and hinged M S doors. The interiors are an ‘experimental space under construction’ with a raw aesthetic, partitions were made out of used shuttering plywood, the internal staircase railing and the furniture display shelves are made out of Balli’s (Bamboo scaffolding).”

In this workshop zone, a calm sheen of light reflects along the diffident patches of plastered and unplastered brick walls. Angular glazed slits transfixed on the eastern and northern walls and roof skylights and light wells sieve shafts of light to the double-heighted space.
Beyond its confines, a winding stair commences from the showroom space to the first floor along two perpendicular walls, pausing midway at a glassy quadrate viewing balcony. This inserted dimension is not an expression of visibility but more of connectivity – progressively linking the workshop, the first level and the showrooms at a glance. The glass box framing the view is adorned with an expressive montage of relevant graphics.
On the first level, the layout simplifies into another showroom space which leads to a studio flanked by the manager’s cabin and a guest room. As an extension to these spaces, is a terrace garden choreographed inconspicuously over the ground floor entrance.


In the broader context, the architecture strived to an understanding of continuous reinvention where the meticulous design detailing had earlier extended to inclusion of recycled glass bottles as glazing and PVC pipes as light channels. Owing to it being an experimental alignment, it was not integrated in the structure.
There is a certain sense of preservation in the conduct of the design – of an aesthetic so synonymous with the modernist ideology and amongst the lesser known details such as conservation of all the trees in the surroundings. Scaled down to befit the intimacy of the site, the raw, industrial sensibility sans any dramatic gestures emphasises the simplicity of the space-making exercise wherein the identity of each individual function is layered as a deeper understanding of the purpose it serves in the overall schema. The strength of the design lies in the duality of the elements that are repurposed and transition effortlessly between a production and exhibition space. The identity also responds to a sense of measure curated in terms of economy, maintenance aspects, and the potential of a functional space to extend beyond the requisite. The patterning of the windows and skylights animates the envelope congruently evoking a verticality to the structure. With an engaging narrative and careful architectural consideration of its form and scale, the building is well-situated in its context creating a thoughtful addition not only to a neighbourhood but also reimagines the industrial typology to an extent.
Area:Built-up Area: 8000sqft Information:
Project: Wrap Art & Design Factory
Location: New Delhi
Architect: Design Bureau
Design Team: Ameet Singh – Lead Architect, Kuldeep Rawat – Architectural Assistant
Client: Wrap Art & Design
Structural Consultants: Cube Engineers
Electrical Consultants: Param Electrical Consulting Engineers
Landscape Consultants: Margosa Landscape Design
Project Completion: 2011 Images & Drawings: courtesy Design Bureau
Loved the attention to detail.