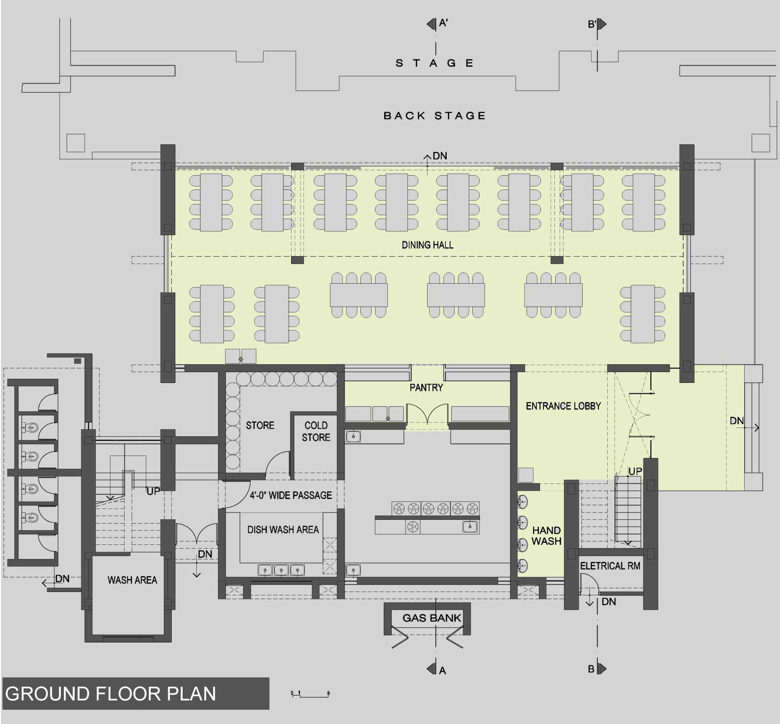
Dining Block October 14, 2014 1589 × 1475 The Future Kids School, Hyderabad: B C Sudhir Reddy, Kruthica Dining Block: Ground Floor Plan