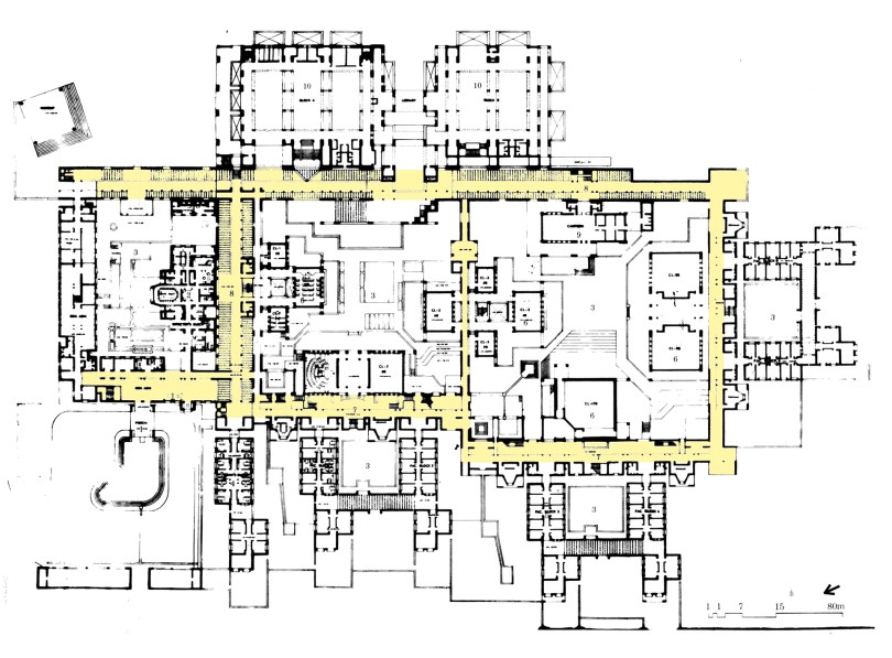
Doshi: Master of Elastic Time June 19, 2020 1920 × 1416 Doshi: The Master of Elastic Time PLAN: IIM Bangalore