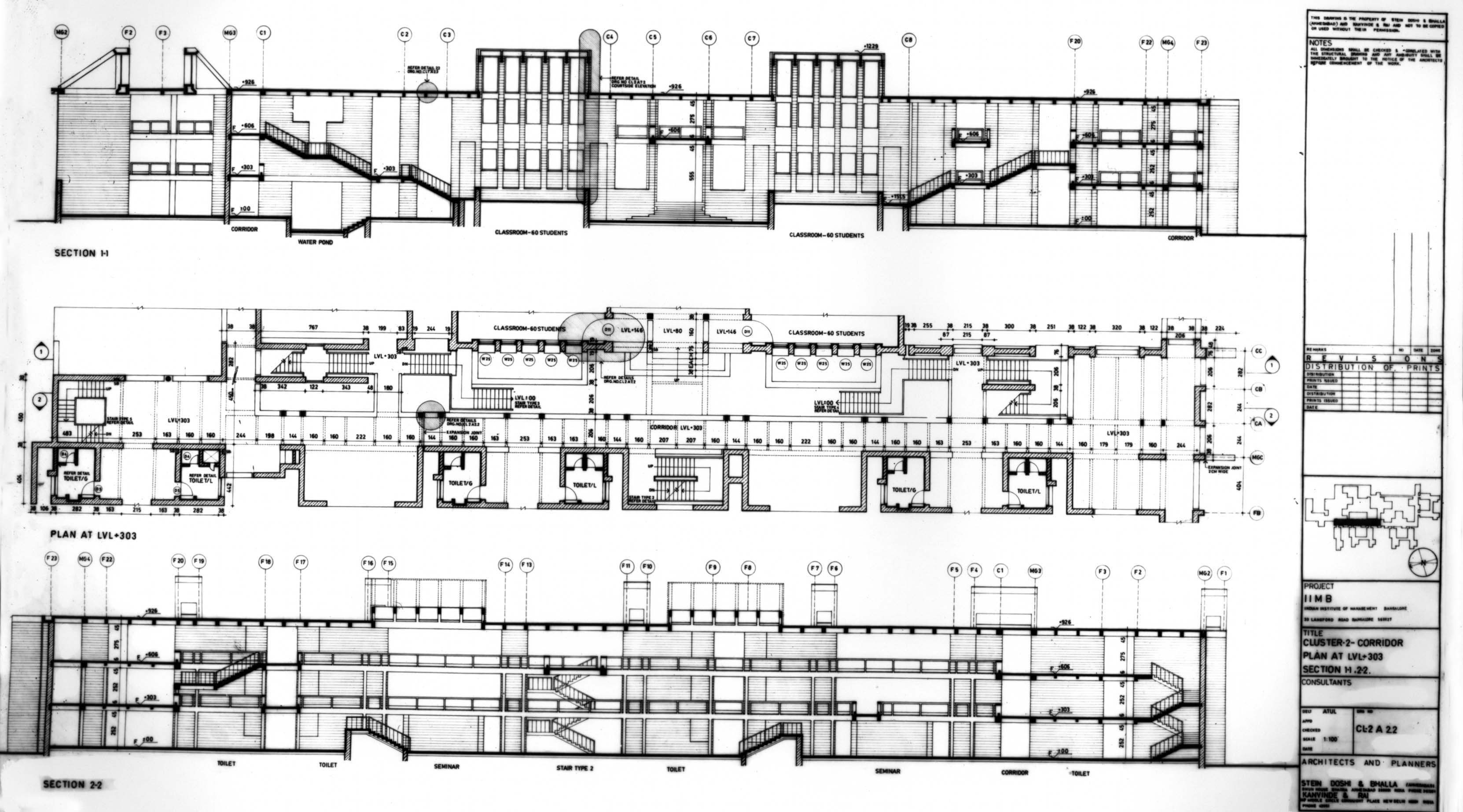
c November 14, 2019 3324 × 1846 MODERN HERITAGE: IIM, Bangalore IIM Bangalore – Cluster 02 | Corridor