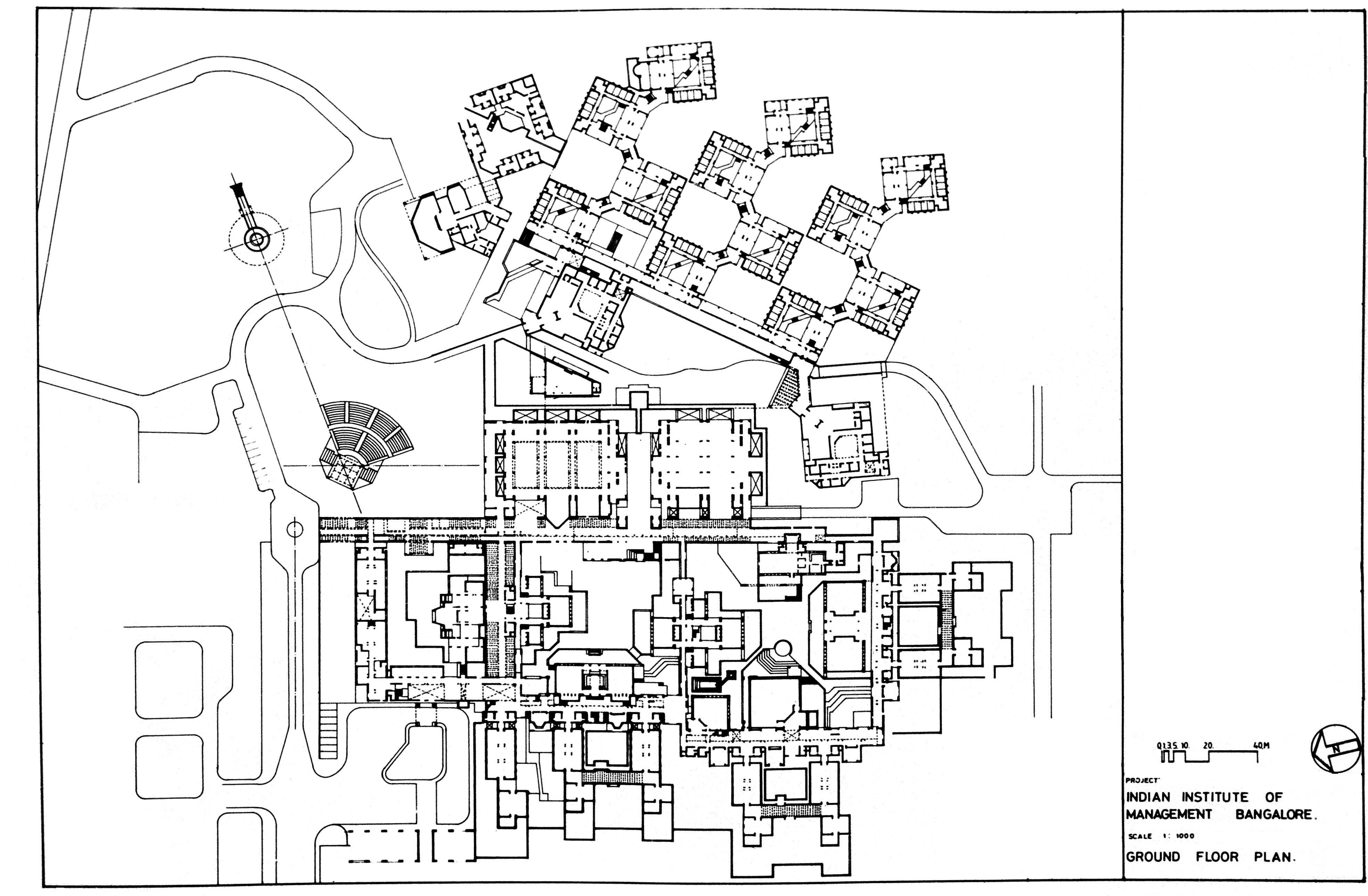
IIM Bangalore – Ground Floor Plan
Δ
This site uses Akismet to reduce spam. Learn how your comment data is processed.