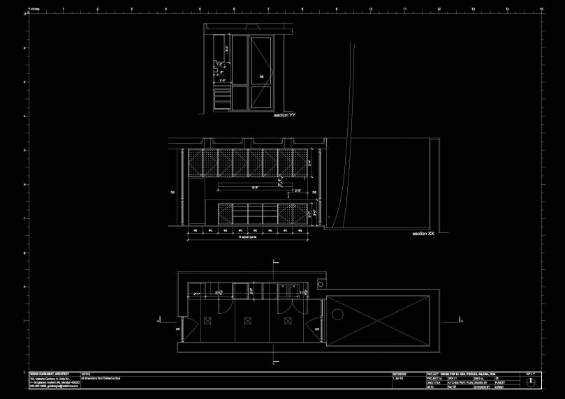
Kitchen Part Plan
Δ
This site uses Akismet to reduce spam. Learn how your comment data is processed.